Ref
Busco
Tipo
En
Zona
Habitaciones
Baños
Características
Precio

Casa de piedra en Aranga. A Coruña (ref.5315)

Casa en venta en Aranga, A Coruña

34.000 €
ref. 5315
1950 Año de construcción
174 m2 construidos
 
 Dormitorios 5
 Trastero
 Garajes 1
 Carp. Exterior Aluminio
 Carp. Interior Madera

Garaje
Calificación Energética En trámite

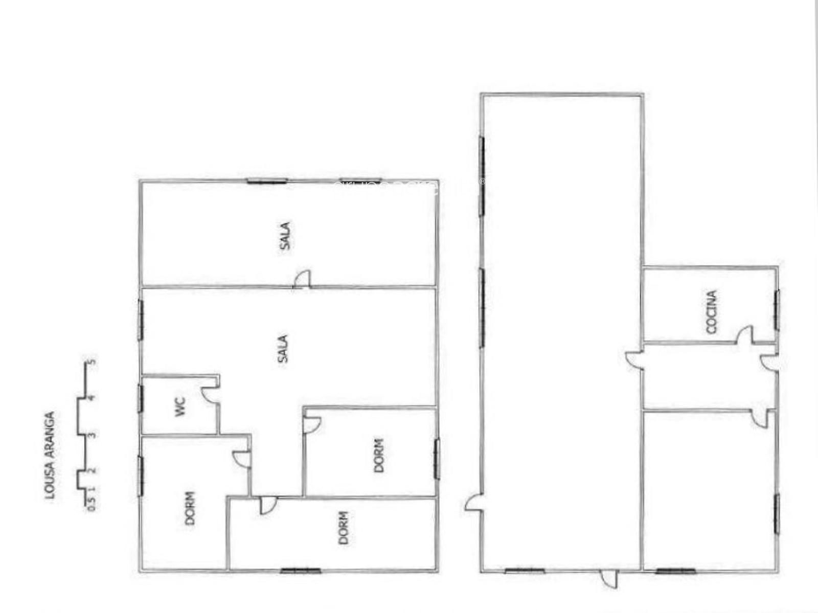
En venta casa de piedra para rehabilitar en Lugar de A Lousa (Aranga). Es necesaria reforma integral. 

La casa principal, de fachadas de piedra, cuenta con diferentes estancias y una superficie en planta baja de 110 m² a la que se aneja otra edificación de 34 m² destinada a aparcamiento, Dispondrás además de varias edificaciones auxiliares destinadas a almacenamiento de maquinaria y aperos. 

Se encuentra en la parroquia de Cambás, beneficiándose de las ventajas fiscales de una zona poco poblada (ITP) reducido.

Disfrutarás de un entorno natural en las proximidades de la ruta de senderismo del Val de Cambás que recorre la fraga das Barbudas hasta la gran Fervenza de Castro Rodicio. 

Ubicada a unos 10 km del edificio del ayuntamiento de Aranga por carretera de montaña con el firme en buen estado  y a apenas 20 km de núcleos de población como Curtis, Oza-Cesures y Betanzos en los que encontrarás la mayoría de los servicios necesarios para tu día a día.  

Si buscas tranquilidad en Galicia en un entorno rural y bien comunicado,  esta vivienda te interesa. ¡Reserva ya tu visita!  

Si desea más información sobre esta propiedad, por favor, rellene el cuestionario:

Grupo Acredita
Calle Newton 11, 2º Dcha.
15008 – A Coruña

981 221 180 -